Mini LOFT under the roof
Projects | | Links:

Description
- Country : France
- City : Saint Marcellin, isère
- Owner : private
- Architect : l’autre fabrique
- Surface : 76 m²
Calendar : 2005
- photographer : Luc Boegly
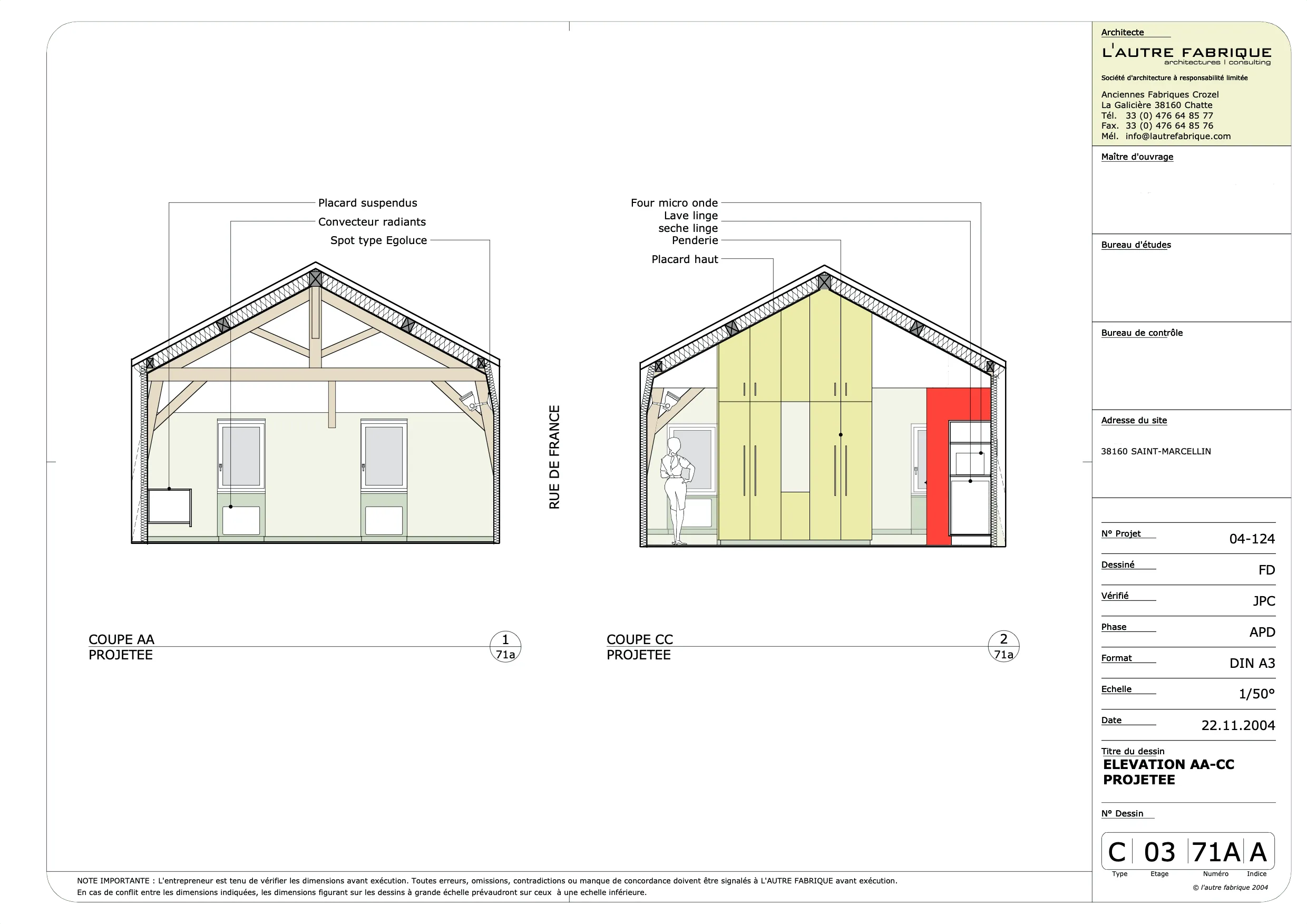
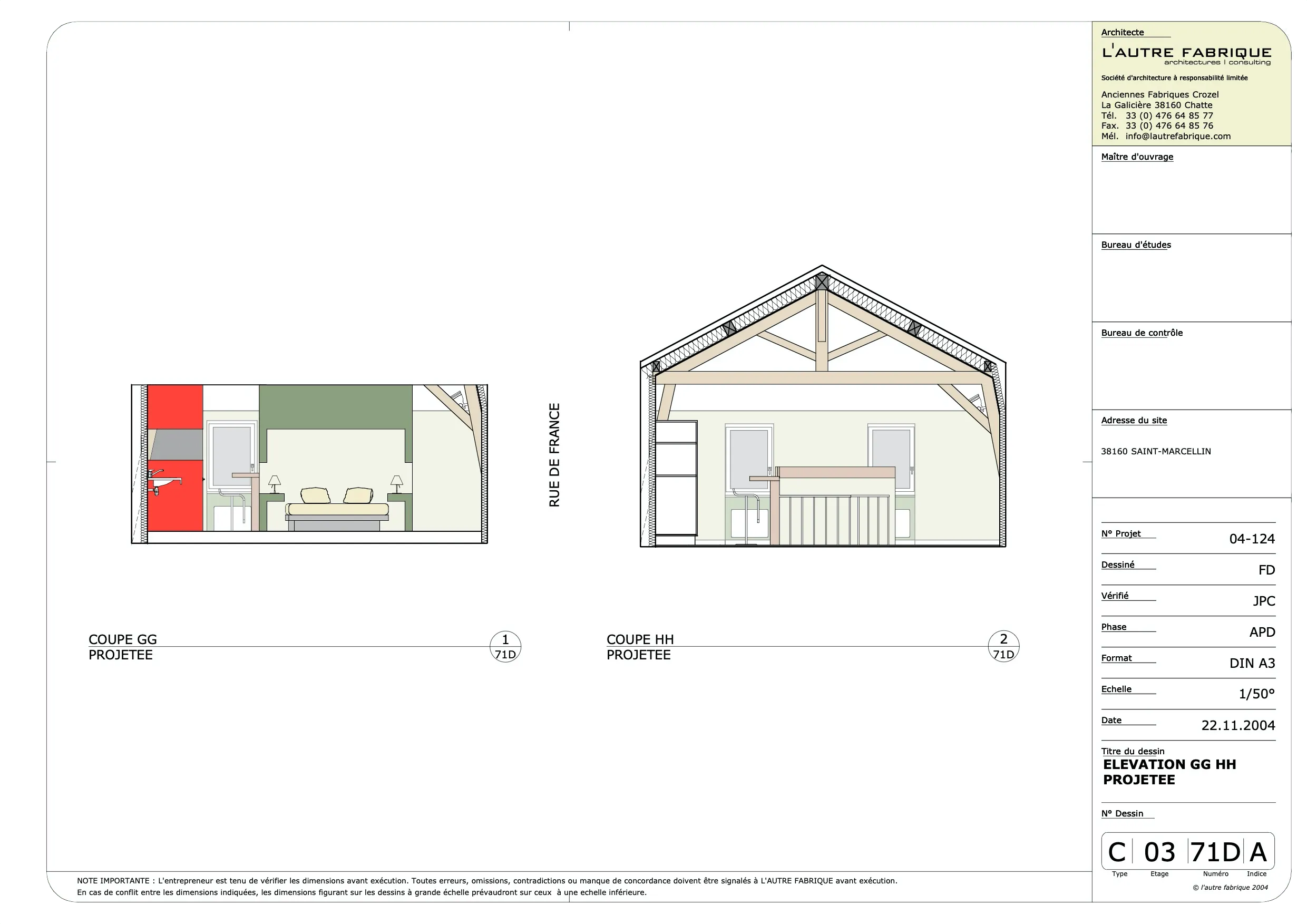
Section / Elevation
Section AA-CC
Section BB-DD
Section FF
Section GG-HH
Section JJ-KK